دبی پارسی، دیوار فارسی شهر دبی
دبی پارسی، جدیدترین پلتفرم نیازمندیها، استخدام ، بازاریابی و درج آگهی مشاغل و انتشار تبلیغات شما در دبی و کشور امارات متحده عربی ویژه فارسی زبانان
Wednesday 28th of January 2026
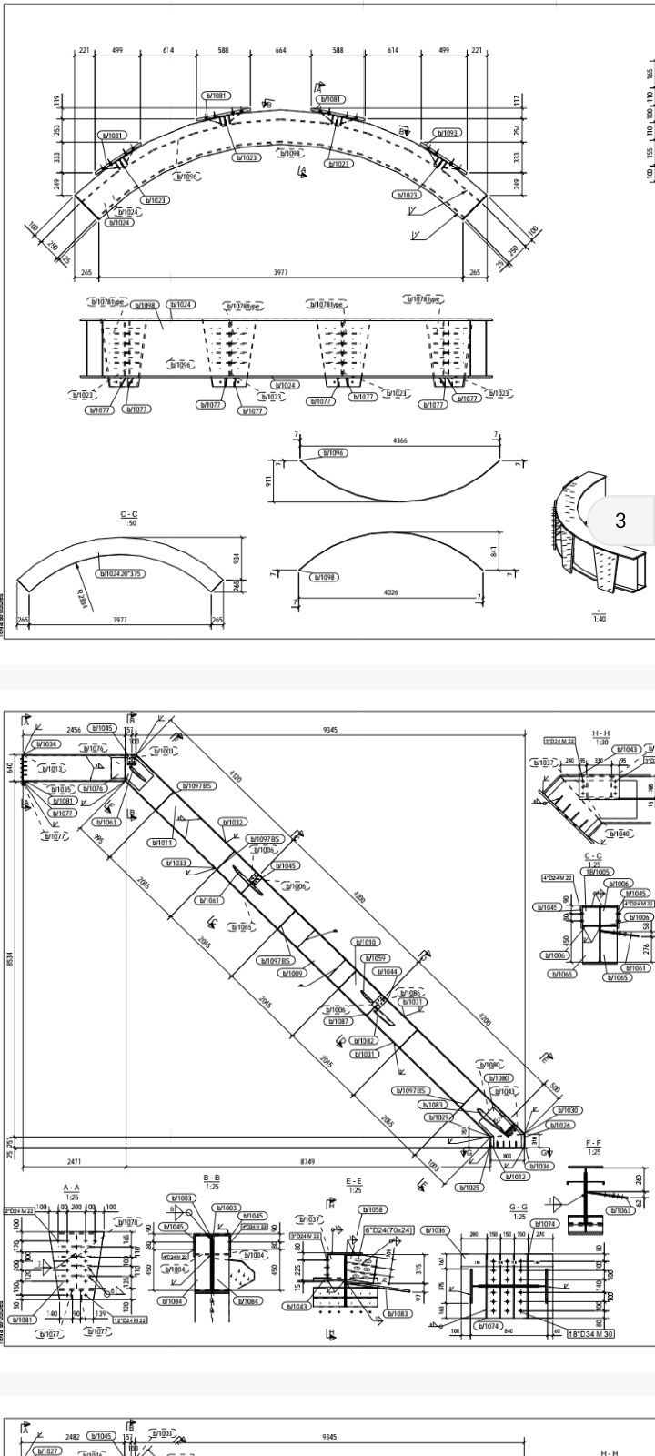
Shop Drawing
تهیه نقشه های کارگاهی سازه های فلزی
Shop drawing
ساختمانی صنایع نفت گاز پتروشیمی
ساخت کارخانجات سیمان
تیه نقشه های کارگاهی با نرم افزار تکلا استراکچر tekla structur انجام میشود
مسلط به زبان انگلیسی
آگهی های مشابه




مهاجرت به دبی
قرعه کشی 1000 درهمی دبی پارسی
هدیه بهمن ماه دبی پارسی، ثبت آگهی رایگان در راستای حمایت از مشاغل خانگی
درج آگهی در دبی